网站首页
公司简介
产品展示
新闻中心
图片中心
联系我们
玻璃单元门图纸
搜索:
路线分类:
医院案例
产品特点
玻璃单元门图纸
车间一角
客户评价
客户视察
合作客户
视频展示
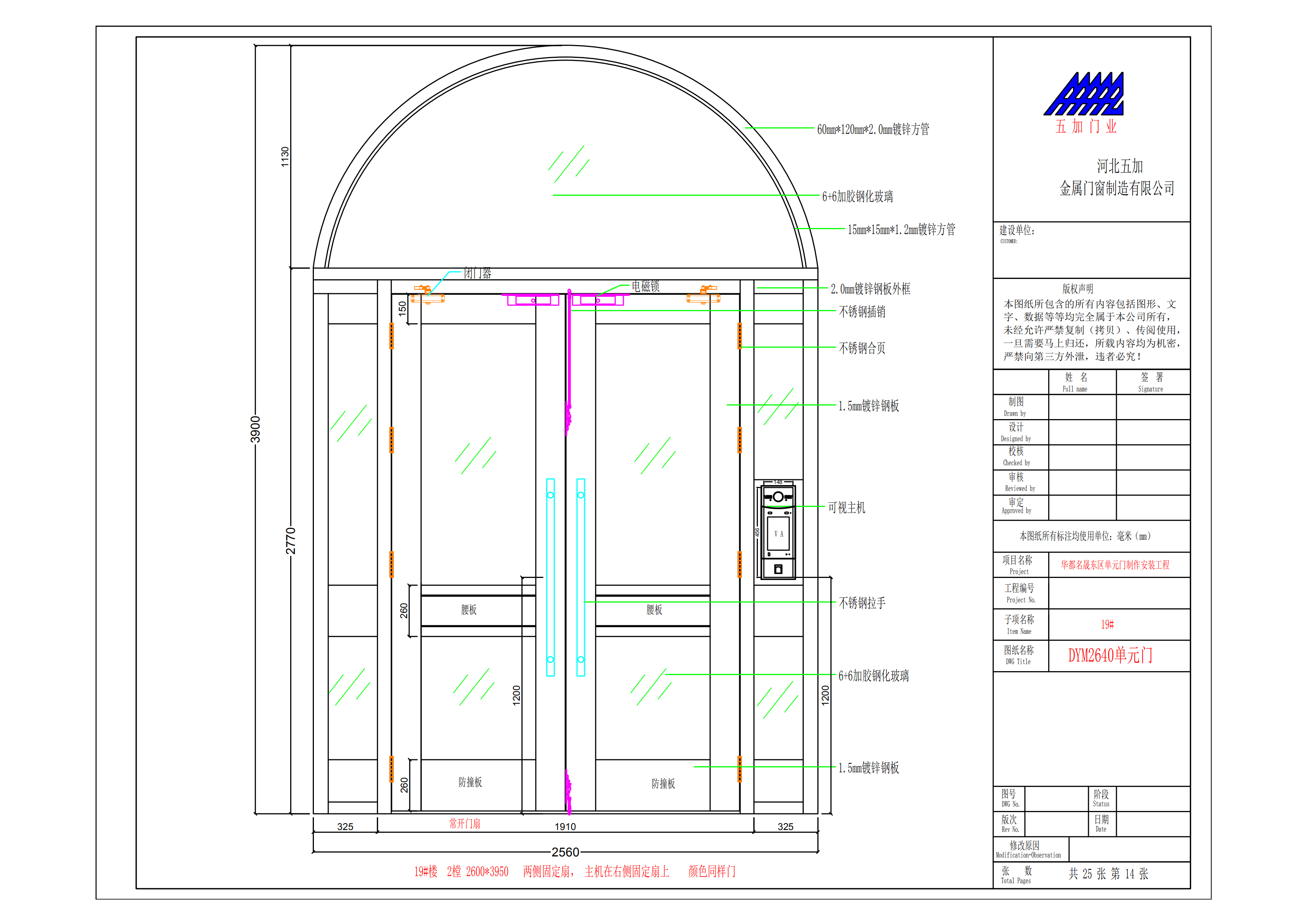
华都名晟单元门_14
作者:admin 日期:2020.04.23
上一条:华都名晟单元门_13
下一条: 华都名晟单元门_12
返回列表